[フレーム]

建築 専門学校 (建築設計科)

AltStyle によって変換されたページ (->オリジナル) /

[画像:テクノロジーで社会を豊かにする。]



蒲田 八王子 建築士・デザイナーを目指す人のための資格・就職・学生作品ブログ 建築設計科blog

設計課題「展示する場」優秀作品紹介16/18

2015年08月29日 設計課題「展示する場」優秀作品紹介16/18

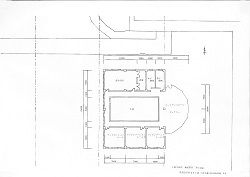
「明るい学び舎」


建築設計科21組 小菅圭輔

光を十分に取り入れることができる明るい空間を計画した。敷地は展示場としてもアクセスがよく採光も確保できる中央広場とし、ガラス張りの開放感あふれるエントランスホールと広々とした中庭を計画した。エントランスホールは1階をギャラリー、2階をラウンジとし、中庭をガラス張りとすることで、まるで外にいるかのような開放的な空間とした。
[画像:展示する場 1582 小菅圭輔 1-4][画像:展示する場 1582 小菅圭輔 2-4]

n-38119754 at 9:0 | この記事のURL | |




traq